header-logo2.png

Rent

Rook

$8,470.00 /mo

Chattanooga, TN, USA - 125421

A moody industrial aesthetic takes front stage on this tiny house. The exposed stainless steel screws on the exterior cladding and the brick veneer, rustic wainscoting, and the vintage lighting inside bring a truly unique design to this small home.

Floor Plans

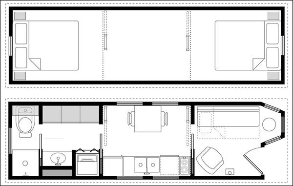
Floor Plan 01

floor_plan.png
Sleeps : 2 + 2 in loft
Length : 26′ 6″
Width : 200
Height : 120
Square Feet : 217 + 89 in loft
Dry Weight : ~13,300 lbs
Towing : 2 + 2 in loft

Similar Tiny Homes