header-logo2.png

Rent

Farniente

$7,370.00 /mo

Franklin, TN, USA - 457623

When looking for transportable tiny houses, you wouldn’t want to miss the Farniente as it offers everything that you are looking for and more.

Floor Plans

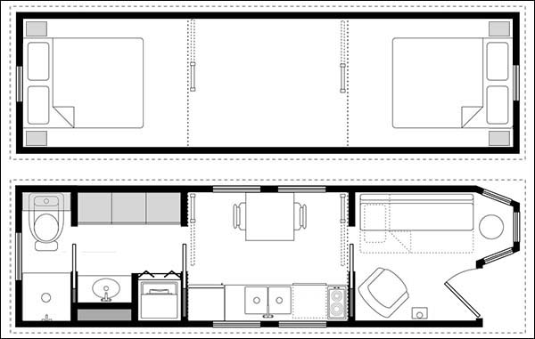
Plan 1

floor_plan.png
Sleeps : 2 + 2 in loft
Length : 26′ 6″
Width : 200
Height : 120
Square Feet : 217 + 89 in loft
Dry Weight : ~13,300 lbs
Towing : 2 + 2 in loft
7.jpg
7.jpg
7.jpg

Similar Tiny Homes